Частный коттедж

Общая площадь:
  • 130 кв.м.
Стадия проектирования:
  • стадия Р
Программа проектирования:
Инженерные системы:
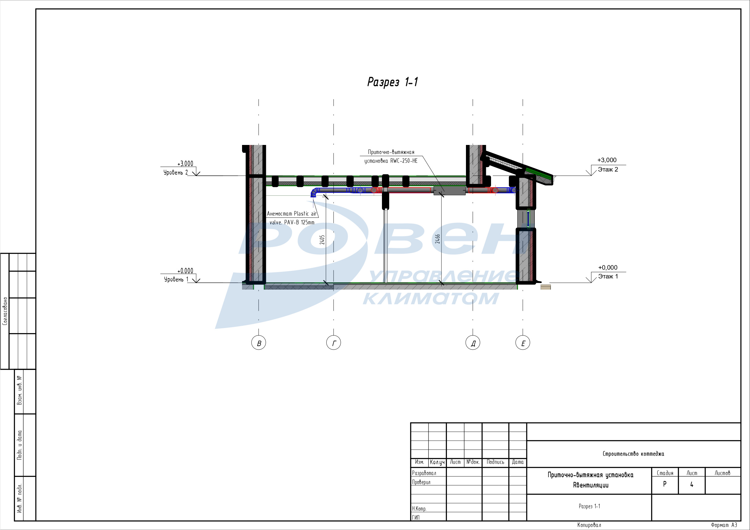
  • общеобменная вентиляция

Наш штат квалифицированных специалистов осуществляет выдачу проектов стадии П и Р как в AutoCAD, так и в среде BIM-моделирования (Revit), а также предоставляет консультационные услуги в области проектирования инженерных систем

Применимые инженерные решения в проекте
Другие объекты этой отрасли